
3 Beds
2 Baths
1,322 SqFt
3 Beds
2 Baths
1,322 SqFt
Key Details
Property Type Single Family Home
Sub Type Freehold
Listing Status Active
Purchase Type For Sale
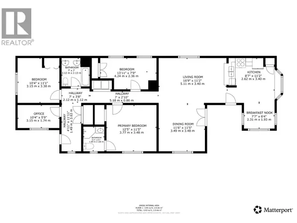
Square Footage 1,322 sqft
Price per Sqft $279
Subdivision North Nelson To Kokanee Creek
MLS® Listing ID 10369596
Bedrooms 3
Year Built 1977
Lot Size 5,662 Sqft
Acres 0.13
Property Sub-Type Freehold
Source Association of Interior REALTORS®
Property Description
Location
Province BC
Rooms
Kitchen 1.0
Extra Room 1 Main level 10'4'' x 5'9'' Den
Extra Room 2 Main level 10'4'' x 11'1'' Bedroom
Extra Room 3 Main level 4'11'' x 11'1'' Mud room
Extra Room 4 Main level 7' x 7' Full bathroom
Extra Room 5 Main level 5'3'' x 6'1'' Full ensuite bathroom
Extra Room 6 Main level 12'5'' x 11'5'' Primary Bedroom
Interior
Heating Forced air
Exterior
Parking Features No
View Y/N No
Roof Type Unknown
Total Parking Spaces 1
Private Pool No
Building
Story 1
Sewer Septic tank
Others
Ownership Freehold
Virtual Tour https://my.matterport.com/show/?m=H54FAzVJATB

"My job is to find and attract mastery-based agents to the office, protect the culture, and make sure everyone is happy! "






